3 февраля 2024 /
0 комментариев
/
11 просмотров

1

2

3

4

5
Хрущевки планировки квартир 3 комнатных

6
Перепланировка трехкомнатной хрущевки 56 м.кв

7
Хрущёвки планировки 2х комнатной 41кв

8

9

10
Хрущевки планировки квартир 3 комнатных

11

12

13

14
План трехкомнатной квартиры хрущевки

15

16

17

18
II-28 4 хрущевка сбоку

19

20

21

22
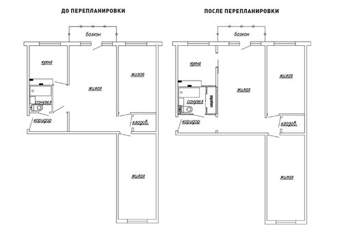
План перепланировки трехкомнатной хрущевки

23

24

25
План перепланировки 3х комнатной хрущевки

26

27

28

29

30

31
Перепланировка хрущевки 44 м2

32

33

34
План перепланировки трехкомнатной хрущевки

35
Перепланировка двухкомнатной хрущевки с проходной комнатой

36
Перепланировка 3х комнатной хрущевки в 2 комнатную

37
38

39
Планировки 3 комнатных квартир брежневки

40
Хрущёвки планировки 2х комнатной 41кв

41

42

43
Перепланировка двухкомнатной хрущевки проекты

44

45

46

47
Перепланировка хрущевки 44 м2

48

49
50
План БТИ двухкомнатной хрущевки

51

52

53

54

55

56

57
Перепланировка 1605-ам трехкомнатной квартиры

58

59