27 января 2024 /
0 комментариев
/
12 просмотров

1
Зал совмещенный с кухней

2

3

4

5

6
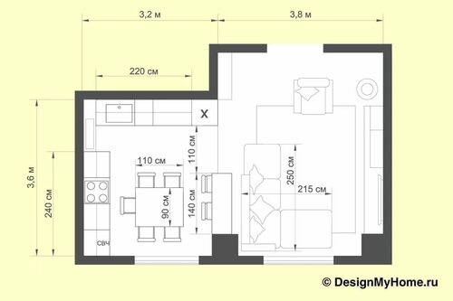
План квартиры с кухней-гостиной

7

8

9

10

11

12

13

14

15

16

17

18

19

20

21
Грин парк евродвушка

22

23

24

25

26

27

28

29

30

31

32

33

34
Небольшой диван на кухню

35

36

37

38

39

40

41

42

43

44

45

46
Зонирование кухни в студии 20 кв.м

47

48

49

50

51

52

53

54

55

56

57
Стильный дизайн кухни