21 января 2024 /
0 комментариев
/
11 просмотров

1

2
3
4

5

6

7

8

9

10

11

12

13

14

15
16

17

18

19

20

21

22

23

24

25

26
27

28

29

30

31
Гамак Полотняный 0,8*2м с планками cy8191 (20)

32

33
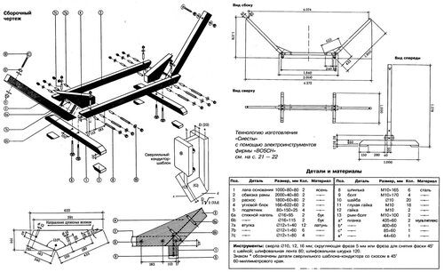
Каркас под гамак чертеж

34

35

36
Гамак на подставке
37
Гамак Размеры

38

39

40

41
Гамак на подставке

42
Гамак HS-3901 Cliff

43

44
Гамак на деревянном каркасе

45

46

47

48

49

50
Гамак на подставке

51
Гамак на подставке

52
Гамак на подставке

53
Подвесное кресло ДВГ чертеж

54
Гамак на подставке

55
Гамак на подставке

56

57